Zu Vermieten €850 - DG-Wohnung
Objektbeschreibung
Die moderne Dachwohnung liegt im dritten Obergeschoss eines 4-Parteienhauses in Bonn-Endenich.
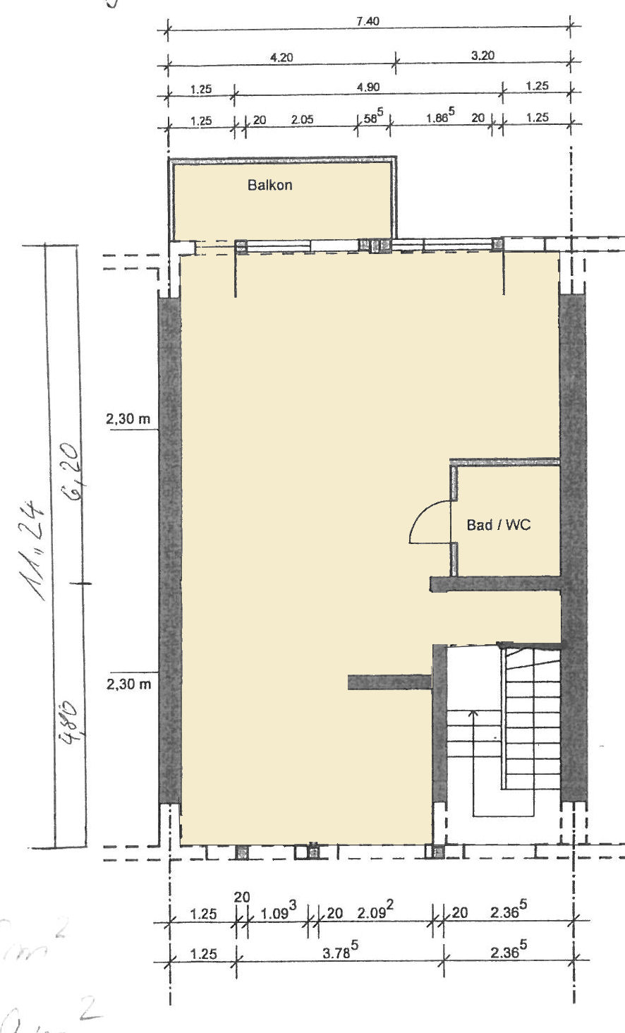
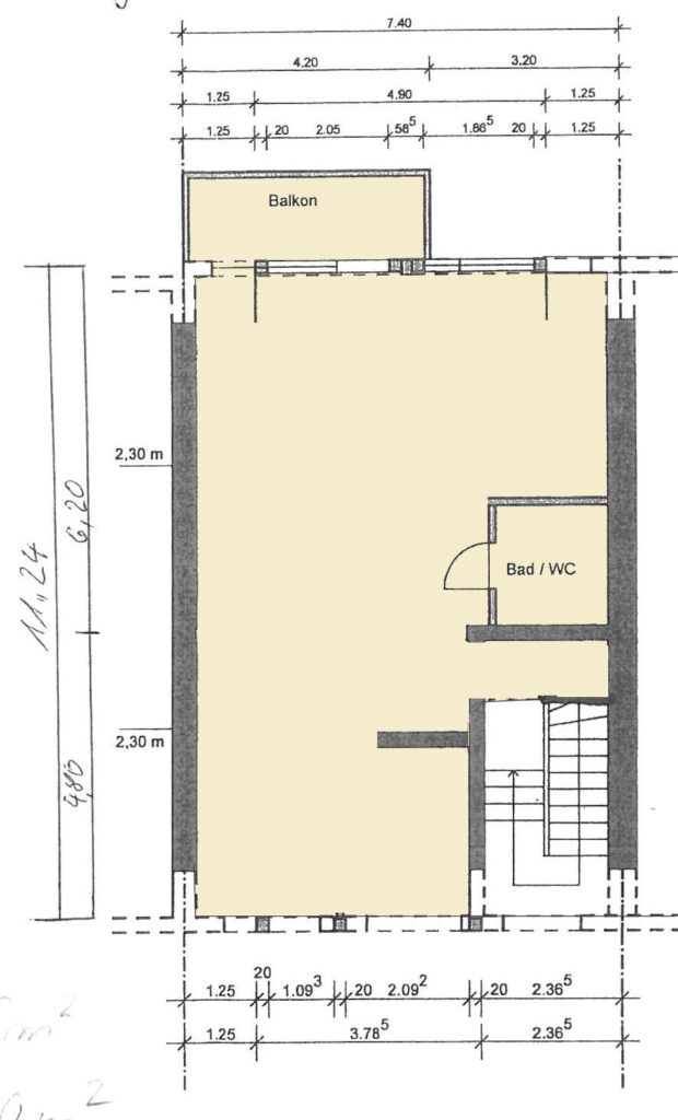
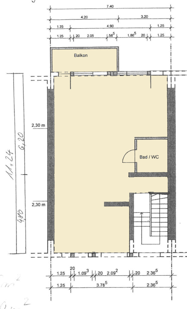
Sie besteht aus einem großzügigen Wohnraum mit offener Küche und Zugang zum östlich ausgerichteten Balkon, sowie einem hochwertigen, innen liegenden Duschbad. Die genaue Aufteilung der Wohnung entnehmen Sie bitte aus der beigefügten Grundrissskizze.
Ein Waschkeller steht zur gemeinschaftlichen Nutzung zur Verfügung.
Lage
Endenich ist ein Ortsteil im Westen der Bundesstadt Bonn mit rund 12.000 Einwohnern. Der Stadtteil hat eine gute Nahversorgung und Infrastruktur und ist mit überörtlichen Einrichtungen auf das Zentrum ausgerichtet.
Freizeitaktivitäten sind im Bereich des Meßdorfer Feldes möglich. Der örtliche Fußballverein gehört zur Bonner Spitze.
Im Stadtteil gibt es ein vielfältiges kulturelles Angebot mit Theater, Kabarett, Jazz-Konzerten und Programm-Kino. Das Bonner Zentrum liegt nur wenige Minuten mit Auto oder Bus entfernt.
Ausstattung
– Einbauküche inkl. Spülmaschine
– Laminatfußboden
– Kunststofffenster mit Dreifachisolierverglasung und elektrischen Rollläden
– hochwertige Eingangstüre
– Sat-TV
– Gaszentralheizung
– Warmwasser über elektr. Durchlauferhitzer
Sonstiges
In der angegebenen Nebenkostenvorauszahlung sind die Heizkosten enthalten. Die Mindestmietzeit beträgt zwei Jahre.
Die Wohnung wird vorzugsweise an berufstätige Mieter vermietet.
Bitte machen Sie uns ein paar Angaben zu Ihrer Person, bzw. zu den Personen, die die Wohnung beziehen möchten. Haben Sie bitte Verständnis dafür, dass wir unter den Bewerbern nur die Interessenten zu einer Besichtigung einladen, die dann bei Interesse auch eine echte Chance haben, den Zuschlag zu erhalten. Wir möchten Ihnen unnötige Besichtigungstermine möglichst ersparen.
Termine werden von uns nach Ihrer Onlineanfrage in der Regel per E-Mail und aufgrund der aktuellen Lage als Einzeltermine koordiniert. Für evtl. Rückfragen geben Sie uns trotzdem bitte Ihre Telefonnummer mit an. Vielen Dank für Ihr Verständnis!
Alle Angaben in diesem Exposé wurden sorgfältig und so vollständig wie möglich gemacht. Fehler, auch z.B. in Grundrissgrafiken können jedoch nicht ausgeschlossen werden, deshalb erfolgen alle Angaben ohne Gewähr.
Datenschutzerklärung
Wenn Sie uns per Kontaktformular Anfragen zukommen lassen, werden Ihre Angaben aus dem Anfrageformular inklusive der von Ihnen dort angegebenen Kontaktdaten zwecks Bearbeitung der Anfrage und für den Fall von Anschlussfragen bei uns gespeichert. Diese Daten geben wir nicht ohne Ihre Einwilligung weiter. Die Verarbeitung der in das Kontaktformular eingegebenen Daten erfolgt somit ausschließlich auf Grundlage Ihrer Einwilligung (Art. 6 Abs. 1 lt. DSGVO). Sie können diese Einwilligung jederzeit widerrufen. Dazu reicht eine formlose Mitteilung per E-Mail an uns. Die Rechtmäßigkeit der bis zum Widerruf erfolgten Datenverarbeitungsvorgänge bleibt vom Widerruf unberührt. Die von Ihnen im Kontaktformular eingegebenen Daten verbleiben bei uns, bis Sie uns zur Löschung auffordern, Ihre Einwilligung zur Speicherung widerrufen oder der Zweck für die Datenspeicherung entfällt (z.B. nach abgeschlossener Bearbeitung Ihrer Anfrage). Zwingende gesetzliche Bestimmungen insbesondere Aufbewahrungsfristen bleiben unberührt.
Weiter Details
- Zimmer insgesamt: 1
- Heizungsart: Zentralheizung
- Anzahl Etagen: 4,0
- Etage: 3
- Zusatzinformation zur Lage: Endenich
- Kaltmiete: 850 €
- monatl. Betriebs-/Nebenkosten: 200 €
- Heizkosten in Warmmiete enthalten: ja
- Balkone: 1
- Wohneinheiten: 4
- Art der Ausstattung: gehoben
- Befeuerung: Gas
- Küche: Einbauküche
- Baujahr: 2013
- Zustand: gepflegt
- Letzte Modernisierung: 2013
- Immobilie ist verfügbar ab: bezugsfrei










