Zu Verkaufen €319.950 - DG-Wohnung
Objektbeschreibung
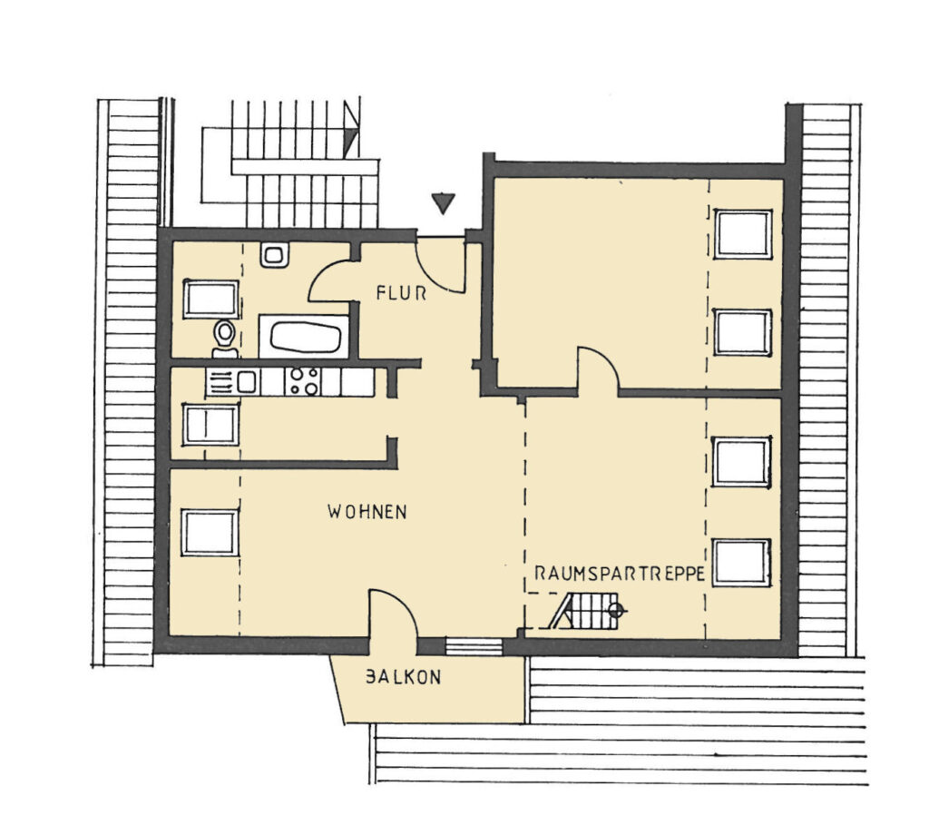
Diese schöne 2-Zimmer Dachwohnung liegt im 2. Obergeschoss eines gepflegten 6-Parteienhauses in einer ruhigen bevorzugten Nebenstraße. Sie besteht aus einem großzügigen Wohnraum mit Zugang zu einem kleinen Balkon (Nordseite), einer Diele, einem Schlafzimmer und einem modernen Fensterbad mit Dusche. Zusätzlich bietet eine über eine Raumspartreppe zu erreichende Galerie mit wohnlich ausgebautem Spitzboden noch viel Platz und Potential (nicht in der angegebenen Wohnfläche enthalten). Die genaue Aufteilung entnehmen Sie bitte dem beigefügten Grundriss.
Zur Wohnung gehört ein Kellerraum und eine PKW-Garage. Ein Waschkeller steht zur gemeinschaftlichen Nutzung zur Verfügung.
Die Wohnung bietet Ihnen ein Zuhause, in dem Sie sich wohlfühlen und Ihren ganz persönlichen Wohnstil verwirklichen können.
Lage
Ippendorf gehört ohne Zweifel zu den begehrtesten Wohnlagen von Bonn. Der Stadtteil erstreckt sich auf einem südlich des Stadtzentrums liegenden Höhenrücken. Nahversorgungseinrichtungen sind ausreichend vorhanden. Durch die naturnahe Lage sind vielfältige Freizeit- und Erholungsaktivitäten möglich (Kreuzberg, Melbtal, Kottenforst), zahlreiche Vereine festigen eine harmonisch gewachsene Dorfgemeinschaft. Ob z.B. Fußball, Tennis oder Hockey, sportlich bieten sich noch viele weitere Möglichkeiten. Es besteht eine sehr gute Busanbindung an das Bonner Zentrum, sowie mehrere mögliche Autobahnanbindungen an die A 565 (Abfahrten Hardthöhe/Lengsdorf/Poppelsdorf).
Ausstattung
Einbauküche:ja
Fußboden: Laminat, Holz, Fliesen, Kork
Heizung: Gaszentralheizung
Warmwasser: über Durchlauferhitzer
Fenster: Kunststofffenster mit Isolierverglasung
TV: Kabelanschluss
Sonstiges: Gegensprechanlage
Sonstiges
Bezug: bezugsfrei
In dem Kaufpreis ist die PKW-Garage enthalten.
monatliches Hausgeld: Euro 425,00 (inkl. Heizkosten, Hausmeisterdienst und monatlicher Erhaltungsrücklage)
Käuferprovision: keine
Alle Angaben in diesem Exposé wurden sorgfältig und so vollständig wie möglich gemacht. Fehler, auch z.B. in Grundrissgrafiken können jedoch nicht ausgeschlossen werden, deshalb erfolgen alle Angaben ohne Gewähr. Preisänderungen bleiben vorbehalten. Maßgeblich sind grundsätzlich die im Kaufvertrag geschlossenen Vereinbarungen.
Gerne stehen wir Ihnen für weitere Informationen oder eine unverbindliche Besichtigung zur Verfügung, setzen Sie sich einfach mit uns in Verbindung.
Weiter Details
- Zimmer insgesamt: 2
- Heizungsart: Zentralheizung
- Anzahl Etagen: 3,0
- Etage: 2
- Zusatzinformation zur Lage: Ippendorf
- Hausgeld: 425 €
- Kaufpreis: 319.950 €
- Anzahl Garagenstellplätze: 1
- Balkone: 1
- Wohneinheiten: 6
- Art der Ausstattung: Standard
- Befeuerung: Gas
- Badausstattung: Dusche
- Stellplatzart: Garage
- Baujahr: 1960
- Zustand: gepflegt
- Letzte Modernisierung: 2008
- Immobilie ist verfügbar ab: bezugsfrei
























